As escadas servem para unir, por degraus sucessivos, os diferentes níveis de uma construção. Para isso deveremos seguir algumas normas:
a) A proporção cômoda entre o plano horizontal e o plano vertical dos degraus é definida pela expressão:
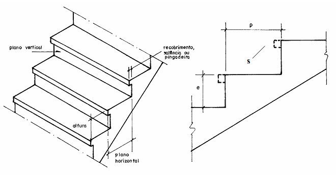
Sendo: e = plano vertical, altura ou espelho.
p = plano horizontal, largura ou piso.
As alturas máximas e larguras mínimas admitidas são:
1º – Quando de uso privativo:
a) altura máxima 0.19 m
b) largura mínima 0.25 m
2º – Quando de uso comum ou coletivo:
a) altura máxima 0.18 m
b) largura mínima 0.27 m
Os pisos dos degraus poderão apresentar saliências até de 0,02m, que não será computada na dimensão mínima exigida (Figura 12.1).
![]() |
| Figura 12.1 – Detalhe dos degraus de uma escada |
Temos nas escadas a linha de plano horizontal ou linha de piso que é a projeção sobre um plano horizontal do trajeto seguido por uma pessoa que transita por uma escada. Em geral esta linha ideal se situa na parte central dos degraus, quando a largura da escada for inferior ou igual a 1,10m. Quando exceder a essa grandeza a linha de planos horizontais se traça a 50 ou 55cm da borda interior (Figura 12.2). Esta é a distância a que circula uma pessoa que com a mão se apoia no corrimão lateral e é a que se conserva nas curvas.
Sobre a linha de planos horizontais tomam-se exatamente os valores da largura do degrau, que deverão ser constantes ao longo da mesma. O conjunto dos degraus compreendidos entre dois níveis, ou entre dois patamares chama-se lanço ou lance.
Um lance não deve ter mais de que 16 degraus ou ainda não exceder a 2,90 m de altura a vencer. Se o número exceder aos valores será preciso intercalar um descanso intermediário (patamar). A largura deste deverá ser no mínimo três pisos (plano horizontal), nunca inferior à largura da escada. Em cada piso a escada desemboca em um descanso que se chama patamar ou descanso de chegada.
![]() |
| Figura 12.2 – Posição da linha do plano horizontal |
As portas que abrem sobre o patamar não devem ocupar a superfície útil do mesmo.
As escadas ainda deverão ser dispostas, de tal forma que assegurem a passagem com altura livre igual ou superior a 2,00 m.
![]() |
| Figura 12.3 – Altura livre mínima de passagem |
b) A largura da escada de uso comum ou coletivo, ou a soma das larguras, no caso de mais de uma, deverá ser suficiente para proporcionar o escoamento do nº de pessoas que dela dependem no sentido da saída. Para determinação desse número toma-se- á a lotação do andar que apresente maior população mais a metade de lotação do andar vizinho, inverso a saída.
O cálculo da lotação dos edíficios poderá ser feito em função da área bruta do andar por pessoa, descontando os recintos sem permanência humana.
Consideramos a “unidade de saída” aquela largura igual a 0,60m, que é a mínima em condições normais, permitindo o escoamento de 45 pesssoas da população calculada do edifício, correspondente a uma fila.
Com os dados apresentados fica mais fácil adotarmos uma largura de escada satisfatória, mas nunca inferior ao que segue:.
A largura mínima das escadas de uso privativo será de 0,90 quando no caso especial de acesso giraus, adegas e similares 0,60 m, e a de uso coletivo será:
· de 1,50m nas edificações para hospitais, clínicas e similares, locais de reuniões esportivas, recreativas, etc.
· de 1,20 m para as demais edificações.
Em casos de escadas de uso comum, a capacidade dos elevadores e escadas rolantes não será levada em conta para efeito do cálculo do escoamento da população de edifício.
A largura máxima permitida para uma escada será de 3,00m.
Arranjos possíveis (Tabela 12.1) (Figura12.4):
As escadas em curva só são permitidas quando excepcionalmente justificáveis, desde que a curvatura externa tenha raio de 6,00 metros, no mínimo, e os degraus tenham largura mínima de 0,28m, medida na linha do plano horizontal, desenvolvida a distância de 1,00m.
As escadas de uso comum ou coletivo terão obrigatoriamente:
· Corrimãos de ambos os lados, obedecidos os requisitos seguintes:
a) Altura constante, situada entre 0,75 m e 0,85 m, acima do nível da borda do piso dos degraus.
b) Serão fixados pela sua face inferior.
c) Estarão afastados das paredes no mínimo 4 cm.
d) Largura máxima de 6 cm
OBS: – Se a soma da largura e do afastamento do corrimão não ultrapassar 10 cm, a medida da largura da escada não precisa ser alterada, garantindo o escomento.
A altura do guarda corpo exigida é entre 90 a 120cm, sendo recomendado 110cm, que nestes casos devemos acrescentar o corrimão.
Quando a largura da escada for superior a 1,80 m , deverá ser instalado também corrimão intermediário.
Se dá o nome de CAIXA ao espaço ou local em cujo interior se acha a escada. A forma da caixa e da escada é citada pelas condições locais de altura e espaço, que podem ser por exemplo (Figura 12.5):
![]() |
| Figura 12.5 – Exemplo de caixa de escada |
As escadas deverão ter a inclinação sempre constante em um mesmo lance. O valor do plano horizontal e da altura (plano vertical) não devem variar jamais de um patamar a outro (Figura 12.6), contudo é aceitável uma exceção quando se trata de degraus de saída, este pode ter um plano horizontal de 2 à 5 mm superior aos dos outros degraus.
A inclinação mais favorável é de 30° para as escadas internas.
Portanto devemos tomar a cautela no instante do cálculo da escada, no seu desenho e marcação na obra, para que não haja a mudança de inclinação, fazendo com isso o seu perfeito desenvolvimento.
![]() |
| Figura 12.6 – Inclinação das escadas |
veja mais em: https://construcaociviltips.blogspot.com.br/2014/05/escadas-consideracoes-gerais-normas-e.html
Construção civil e reforma
Veja mais em Construção e Reforma
Veja mais sobre reforma aqui
Tel.: (21) 2427-9048
Tel.: (21) 2427-9167
optem@optem.com.br










